Property Details

26 Palmer Street, Portland

26 Palmer Street, Portland

For Sale $820,000 New Price - House
764 sq metres 3 Bedrooms2 Bathrooms2 Car Spaces Download Brochure

Ironbark Abode

For Sale

There are very few properties that present with such class and charm as 26 Palmer Street, Portland. This central home has been fully renovated throughout to create a modern stylish home with warmth and appeal. The magic of this private home washes over you as you pass through the double iron gates and find yourself surrounded by charming landscaped gardens and a perfectly constructed sealed driveway and exposed aggregate concrete pathways.

With a warm mixture of textures & tones the kitchen has been created using Caesarstone bench tops, rich red gum feature doors with the crisp contrast of white cabinets. Further kitchen features include 900ml stainless steel oven, integrated dishwasher, corner pantry and functional island bench with power.

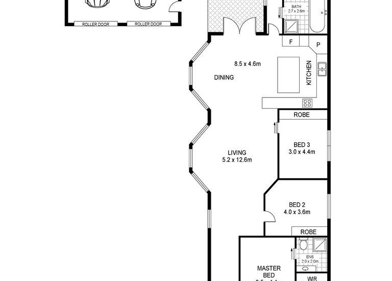
The home has 3 bedrooms, master includes ensuite and walk-in robe, while the family bathroom includes shower, vanity and full size spa with a total of 3 toilets to service the home. The kitchen and dining areas are combined and include functional floor tiles. Steps off the dining area lead to a sunken lounge creating a separate space to relax.

A stylish double garage in line with the homes facade offers impressive features of its own, including wood fire, toilet and hand basin and is fully lined and insulated. Furthermore there is an extensive outdoor undercover entertaining area, secluded garden court yard, front deck and rain water tank. An expansive driveway area of approximately 185m2 (app 31.4m in length) will accommodate vehicles of a larger scale with ease of access through 4.8m wide front gates and opening of app 7.3m wide in front of garage.

The array of breath taking features to this delightful property are endless and too vast to cover. If you would like information on the finer details this property has to offer or to organise your inspection contact exclusive agent Allan Barrett on 0438660057. Ironbark Abode is currently being run as a successful holiday rental property.

Features

Property Map

Allan Barrett

agent pic
  • Office : 03 5523 3822
  • Mobile : 0438 660 057

Rated as the #1 Agent in the Portland Area, and recognised as one of the most successful real estate professionals in Victoria.
In 2006, at the age of 26, Allan purchased his first real estate company along with his family, and sells real estate in South West Victoria. Since 2006 the business has grown by 5 times ...

Contact