Property Details

2 Wando Court, Portland

2 Wando Court, Portland

Under Contract $495,000 - House
868 sq metres 3 Bedrooms1 Bathrooms1 Car Spaces Download Brochure

Simple, Smart, Stylish

Under Contract

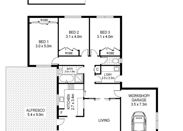
Tucked away in a quiet court in sought-after South Portland, this well-presented three-bedroom home offers a peaceful lifestyle just minutes from the CBD. Designed for easy living, the home welcomes you with a spacious open-plan living, dining and kitchen area, where the kitchen features a gas cooktop, separate electric oven and excellent storage. The rear of the home hosts three generously sized bedrooms all with BIR, all with built-in robes and fresh carpet, serviced by a family bathroom with both a shower and separate bath. Step outside to a large undercover alfresco area, ideal for entertaining or relaxing in warmer months. A spacious backyard provides plenty of room for kids to play, while the open double carport offers convenient storage for a boat or caravan.
Don’t miss this fantastic opportunity. Contact exclusive Allan Barrett on 0438 660 057 or the team at Seaview Real Estate on 03 5523 3822 to arrange your private inspection.


 View Statement Of Information

Features

Property Map

Allan Barrett

agent pic
  • Office : 03 5523 3822
  • Mobile : 0438 660 057

Rated as the #1 Agent in the Portland Area, and recognised as one of the most successful real estate professionals in Victoria.
In 2006, at the age of 26, Allan purchased his first real estate company along with his family, and sells real estate in South West Victoria. Since 2006 the business has grown by 5 times ...

Nash Wollard

agent pic
  • Mobile : 0460 877 718

Living locally in Portland his whole life, Nash is well known throughout the community for his approachability, professionalism, and integrity. Inspired and enthusiastic, he is dedicated to delivering exceptional service and ensuring every client receives the best possible experience.
Since beginning his real estat...

Contact