Property Details

143 Garden Street, Portland

143 Garden Street, Portland

Sold! $162,000 - House
996 sq metres 2 Bedrooms1 Bathrooms2 Car Spaces Download Brochure

Plenty of potential

Sold!

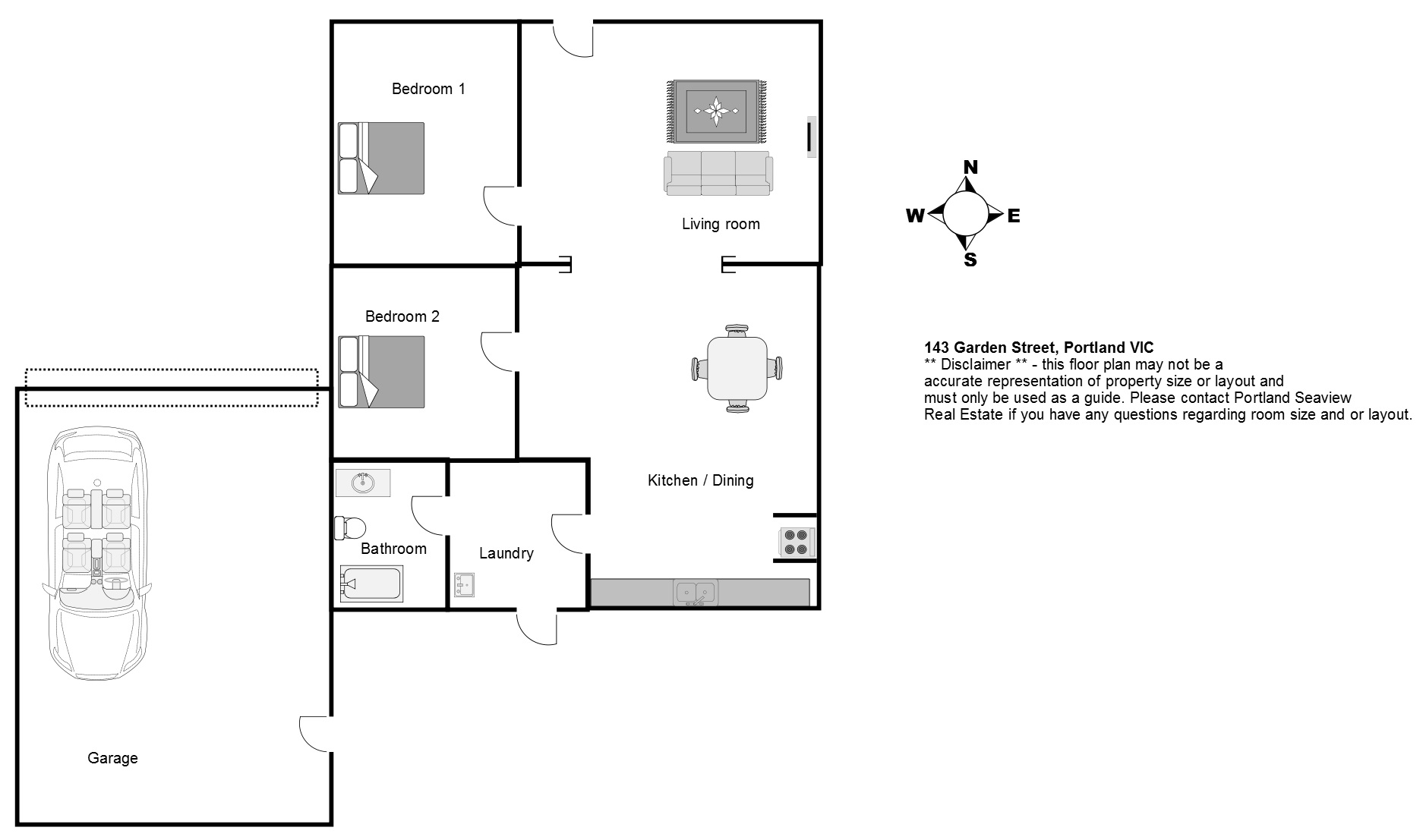
This humble 2 bedroom weather board home is situated in north Portland on a large block, and awaiting it's new owner to call home.
Walk through the spacious carpeted lounge room with gas heating, high ceilings and opening onto to the open plan dining and kitchen space. The open plan kitchen features gas oven and stove. The 2 bedrooms are large in size, while the renovated bathroom has shower over the bath.
Outside there is ample garden shedding a older double bay garage surrounded by established gardens and plenty of potential and located on a large block approx 996m2.
Contact Portland Seaview Real Estate on 5523 3822 to book an inspection time.


 View Statement Of Information

Property Map

Allan Barrett

agent pic
  • Office : 03 5523 3822
  • Mobile : 0438 660 057

Rated as the #1 Agent in the Portland Area, and recognised as one of the most successful real estate professionals in Victoria.
In 2006, at the age of 26, Allan purchased his first real estate company along with his family, and sells real estate in South West Victoria. Since 2006 the business has grown by 5 times ...

Contact