Property Details

11 Albert Street, Portland

11 Albert Street, Portland

Sold! $177,000 - House
3 Bedrooms1 Bathrooms2 Car Spaces Download Brochure

Opportunity

Sold!

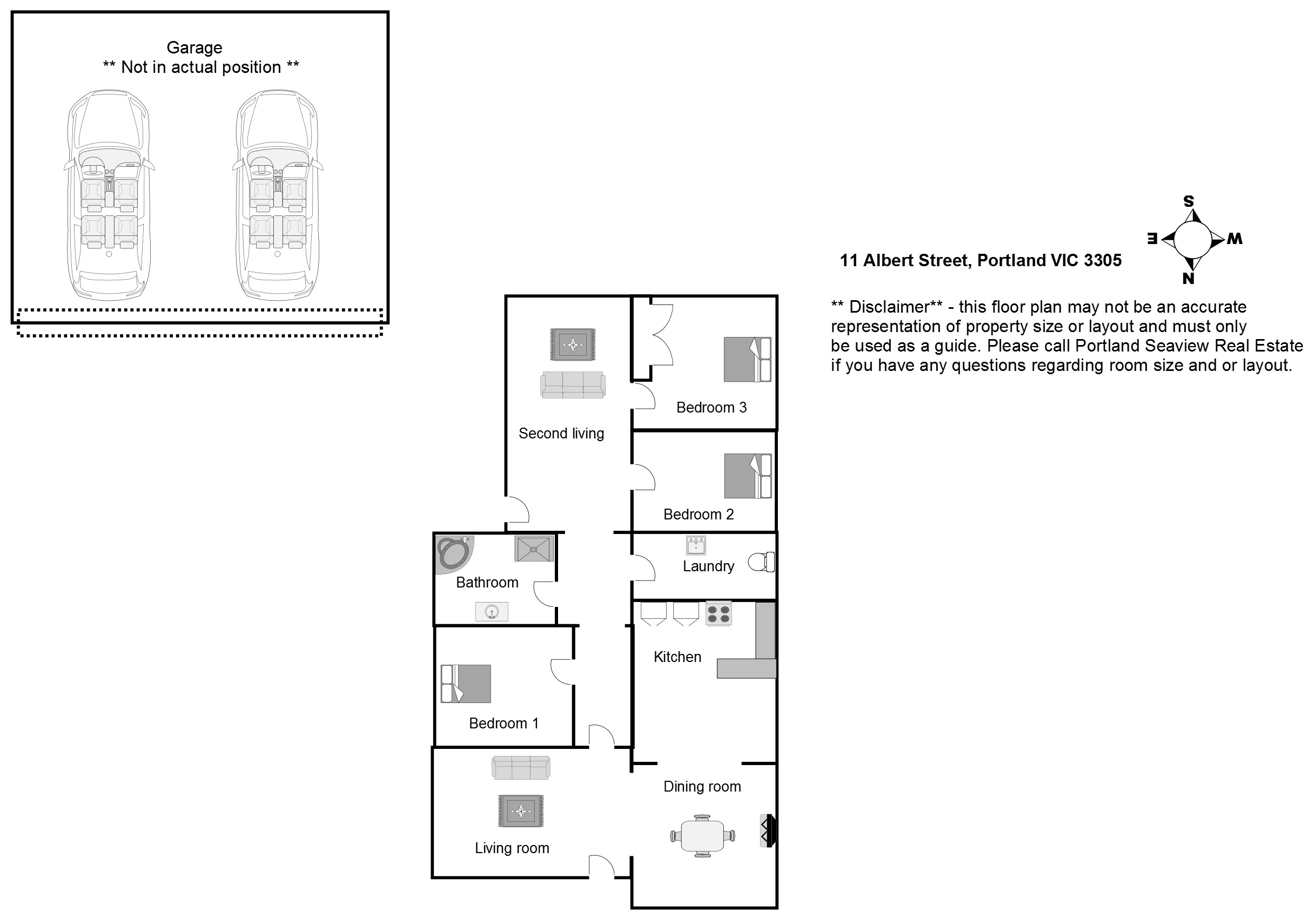
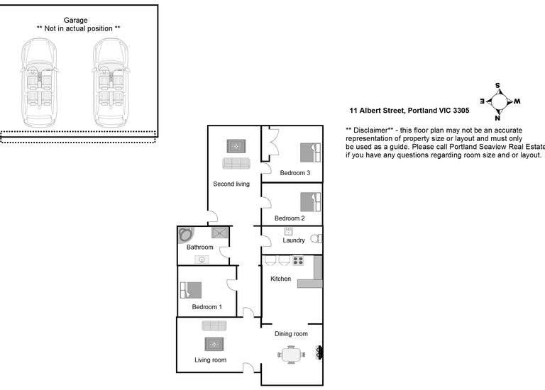
Located in a quiet residential area of Portland; 3 blocks back from the ocean and less than 2 km to the CBD is this 658m2 parcel of land with a 3 bedroom home and a double garage. The home offers 2 separate living areas, as well as a combined kitchen and dining space, bathroom, laundry and 3 bedrooms. All 3 bedrooms are carpeted, while 2 have built-in robes.
The garage is approximately 8m long x 5m wide with concrete floor and power.
This is a perfect opportunity for a first home buyer, investor or renovator. Call Portland Seaview Real Estate for more information or to make an inspection time.


 View Statement Of Information

Features

Property Map

Allan Barrett

agent pic
  • Office : 03 5523 3822
  • Mobile : 0438 660 057

Rated as the #1 Agent in the Portland Area, and recognised as one of the most successful real estate professionals in Victoria.
In 2006, at the age of 26, Allan purchased his first real estate company along with his family, and sells real estate in South West Victoria. Since 2006 the business has grown by 5 times ...

Contact