Property Details

102 Garden Street, Portland

102 Garden Street, Portland

Sold! $230,000 - House
794 sq metres 4 Bedrooms1 Bathrooms1 Car Spaces Download Brochure

Potential Plus

Sold!

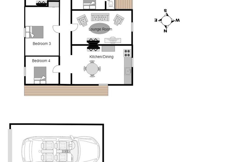
With an excellent position this property has potential plus, located on a corner block of approximately 794m2 this property has the potential to be renovated or would make an ideal dual townhouse site STCA. Inside the home you will find a lot of character features including high ceilings timber feature walls and roofs in some bedrooms. 4 bedrooms in total, lounge room with gas heating.
The home requires major renovations and would become a rewarding project for the right buyer. A large block allows for room for a large shed STCA. For further information or to organise your inspection contact the team on 5523 3822.


 View Statement Of Information

Features

Property Map

Allan Barrett

agent pic
  • Office : 03 5523 3822
  • Mobile : 0438 660 057

Rated as the #1 Agent in the Portland Area, and recognised as one of the most successful real estate professionals in Victoria.
In 2006, at the age of 26, Allan purchased his first real estate company along with his family, and sells real estate in South West Victoria. Since 2006 the business has grown by 5 times ...

Contact