Property Details

16 Laguna Court, Portland

16 Laguna Court, Portland

Sold! $465,000 - House
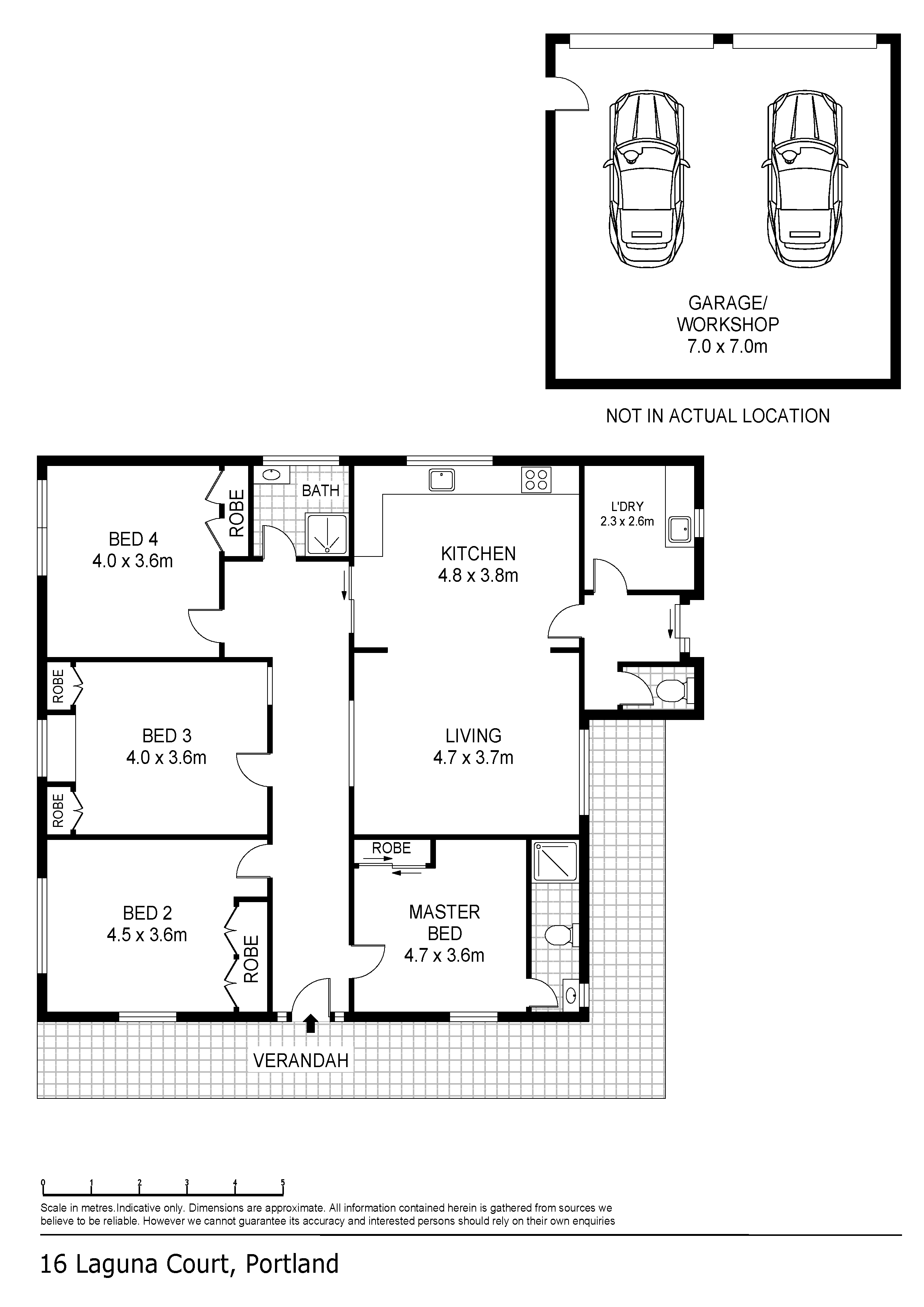
2350 sq metres 4 Bedrooms2 Bathrooms2 Car Spaces Download Brochure

Laguna living

Sold!

This well presented weatherboard home is located on a large 2350 m2 allotment in one of Portland's premier locations.
The home has 4 large bedrooms, 3 of which have built in robes, main bedroom with ensuite and ample cupboard space. The good sized L-shaped kitchen is equipped with electric stand alone cooking, plenty of bench space and dishwasher. Connected to the Kitchen is an open plan living space with the convenience of gas heating. The home features a lot of the original period features including the high ceilings through out the home. The property has a double garage and a large a well maintained yard with lots of room to extend the home and build more shedding and with lots of room for the kids to run around. This Laguna home is a short walk from the CBD and of course the lagoon. The property is ready for the new owners to make it home and has been priced to sell in the hot Portland market. For more details or to organise your inspection contact the team today.


 View Statement Of Information

Property Map

Allan Barrett

agent pic
  • Office : 03 5523 3822
  • Mobile : 0438 660 057

Rated as the #1 Agent in the Portland Area, and recognised as one of the most successful real estate professionals in Victoria.
In 2006, at the age of 26, Allan purchased his first real estate company along with his family, and sells real estate in South West Victoria. Since 2006 the business has grown by 5 times ...

Contact